Glamping podnoži
- [27.3. 2026]Smazat/ Upravit/ Topovat
























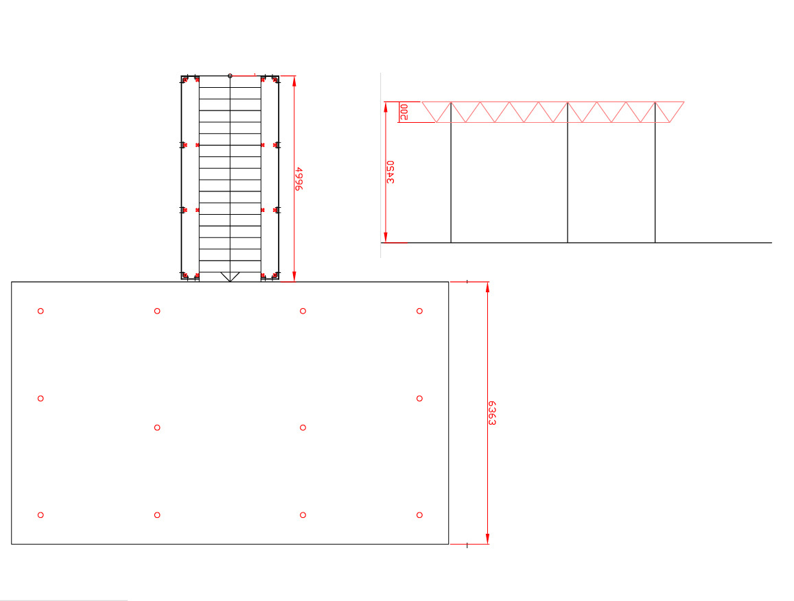
prodám výstavní stánek s patrem 67,5 m2 a schodištem, vyška patra 3,6 m. Vše je uložene v bednach na kolečkach pro snadnou přepravu na výstavy.
Je k tomu manual pro stavbu, staticke posudky, 3D modely (v maxu) . Rozmery patra se dají upravit
Více informací na vyžádání.
Další využití:
terasa, rozhledna, tiny house, kavárna/prodejna v nákupním centru, podium, nivtec, VIP zona, rozebíratelná stavba, základ pod zahradní domek, Zahradní domek
Patro:
- soukromá zóna pro cca 30 hostů
- 67,5 m², výška podlahy 3600 mm
- konstrukce z Meroformu typu „Berlín“, rastr 707 mm
- sloupy z nerezové oceli, výztuhy Macalloy 520 M12, nastavitelný podstavec
- sloupy spojené pod patrem ocelovým profilem 50x50x3 mm
Zábradlí patra:
- výška 1000 mm
- sloupy z 2 x 5mm ocelových lamel
- dřevěné madlo, zaoblené hrany, podepřené ocelovým pásem
- výplňový panel z tvrzeného skla 8 mm, upevněný pomocí Meroform Spider L
- rohy z 16mm ocelových tyčí
Schodiště:
- 19 stupňů
- dřevěný schod výška 35 mm
- nastavitelný podstavec
- dřevěné zábradlí s ocelovou podpěrou
Schodiště „Věž“:
- ocelová konstrukce obložena skleněnými panely z tvrzeného skla 8 mm
- podlahová plocha 11,4 m², nastavitelná výška cca 5990 mm
- sloupy ⌀ 102 mm z oceli S355
- nosníky z 8mm oceli
- výztuhy Macalloy M520 M12
- sklo upevněné pomocí Meroform Spider L
Je k tomu manual pro stavbu, staticke posudky, 3D modely (v maxu) . Rozmery patra se dají upravit
Více informací na vyžádání.
Další využití:
terasa, rozhledna, tiny house, kavárna/prodejna v nákupním centru, podium, nivtec, VIP zona, rozebíratelná stavba, základ pod zahradní domek, Zahradní domek
Patro:
- soukromá zóna pro cca 30 hostů
- 67,5 m², výška podlahy 3600 mm
- konstrukce z Meroformu typu „Berlín“, rastr 707 mm
- sloupy z nerezové oceli, výztuhy Macalloy 520 M12, nastavitelný podstavec
- sloupy spojené pod patrem ocelovým profilem 50x50x3 mm
Zábradlí patra:
- výška 1000 mm
- sloupy z 2 x 5mm ocelových lamel
- dřevěné madlo, zaoblené hrany, podepřené ocelovým pásem
- výplňový panel z tvrzeného skla 8 mm, upevněný pomocí Meroform Spider L
- rohy z 16mm ocelových tyčí
Schodiště:
- 19 stupňů
- dřevěný schod výška 35 mm
- nastavitelný podstavec
- dřevěné zábradlí s ocelovou podpěrou
Schodiště „Věž“:
- ocelová konstrukce obložena skleněnými panely z tvrzeného skla 8 mm
- podlahová plocha 11,4 m², nastavitelná výška cca 5990 mm
- sloupy ⌀ 102 mm z oceli S355
- nosníky z 8mm oceli
- výztuhy Macalloy M520 M12
- sklo upevněné pomocí Meroform Spider L
|
| |||||||||||||||||||||||||||||||



